120 Parkdale Avenue N Hamilton, Ontario L8H 5W9
6 Bathroom
4,902 ft2
Fully Air Conditioned
Forced Air
$1,285,000
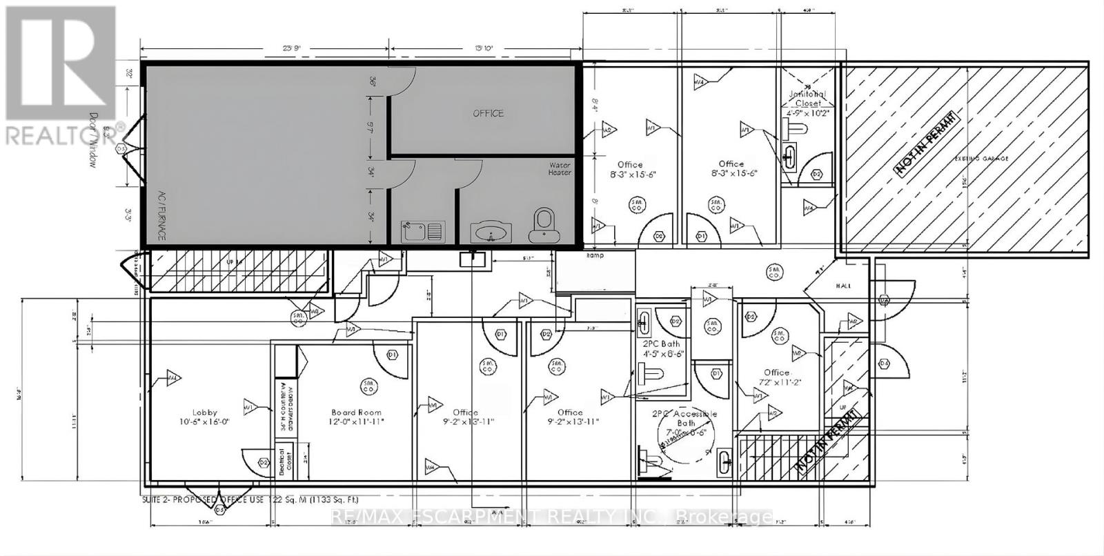
Approximately 4,900 sq. ft. over two floors with C5 zoning permitting community shopping and residential uses. Excellent high-traffic, high-visibility location on a busy street. Solid construction featuring concrete block walls and a concrete core slab ceiling. Parking available for 10+ vehicles. Tenant(s) pay all utilities. Property includes separate electric, gas, and water meters, as well as individual furnaces, air conditioners, and hot water tanks. Asphalt shingles replaced in 2020. (id:63956)
Property Details
| MLS® Number | X12294559 |
| Property Type | Retail |
| Community Name | Normanhurst |
| Amenities Near By | Highway, Public Transit |
| Farm Type | Other |
| Parking Space Total | 12 |
Building
| Bathroom Total | 6 |
| Age | 16 To 30 Years |
| Cooling Type | Fully Air Conditioned |
| Heating Fuel | Natural Gas |
| Heating Type | Forced Air |
| Size Interior | 4,902 Ft2 |
| Utility Water | Municipal Water |
Land
| Acreage | No |
| Land Amenities | Highway, Public Transit |
| Size Depth | 90 Ft |
| Size Frontage | 70 Ft |
| Size Irregular | 70 X 90 Ft ; 70.14 X 90.09 X 70.14 X 90.10 Ft |
| Size Total Text | 70 X 90 Ft ; 70.14 X 90.09 X 70.14 X 90.10 Ft |
| Zoning Description | C5 |
Contact Us
Contact us for more information









































